WarmSpan²
WarmSpan² w Enviroclad Details - Full Set
Best Practice Design in Membrane Roofing
Sump Outlet with Overflow 003
Plinth Direction to Divert Watershed 004
Cricket Diverter for Watershed 004a
Horizontal Ducting Pipe 005a
Vertical Ducting Pipe 006
Horizontal Ducting Pipe 006a
Flue or Oversize Pipe 007
Skylight or Roof Access Hatch 008
Square Post through Decking 009
TPO Pourable Pocket and Sealant 010
Post or Rail for Plant Room Equipment 011
Plinth Base for Balustrade 012
Plinth for Concrete or Timber 013
Acoustic Mounting Block 014
EJOT Plinth for Enviroclad 015
Verge Barge with Low-Profile AFS 031
Verge Barge with Low-Profile AFS in Isometric 031a
Drip Edge to External Spouting 032
Verge Edge with Wall Continuing - Diverter for Cladding 033
Verge Edge with Wall Returning - Diverter for Cladding 033a
Parapet with Cap Concrete Wall 040
Parapet Timber Wall ISO 040a
Parapet with Scupper Outlet 041
Parapet with Overflow 042
Internal Gutter with Outlet 050
Internal Gutter to Wall 051
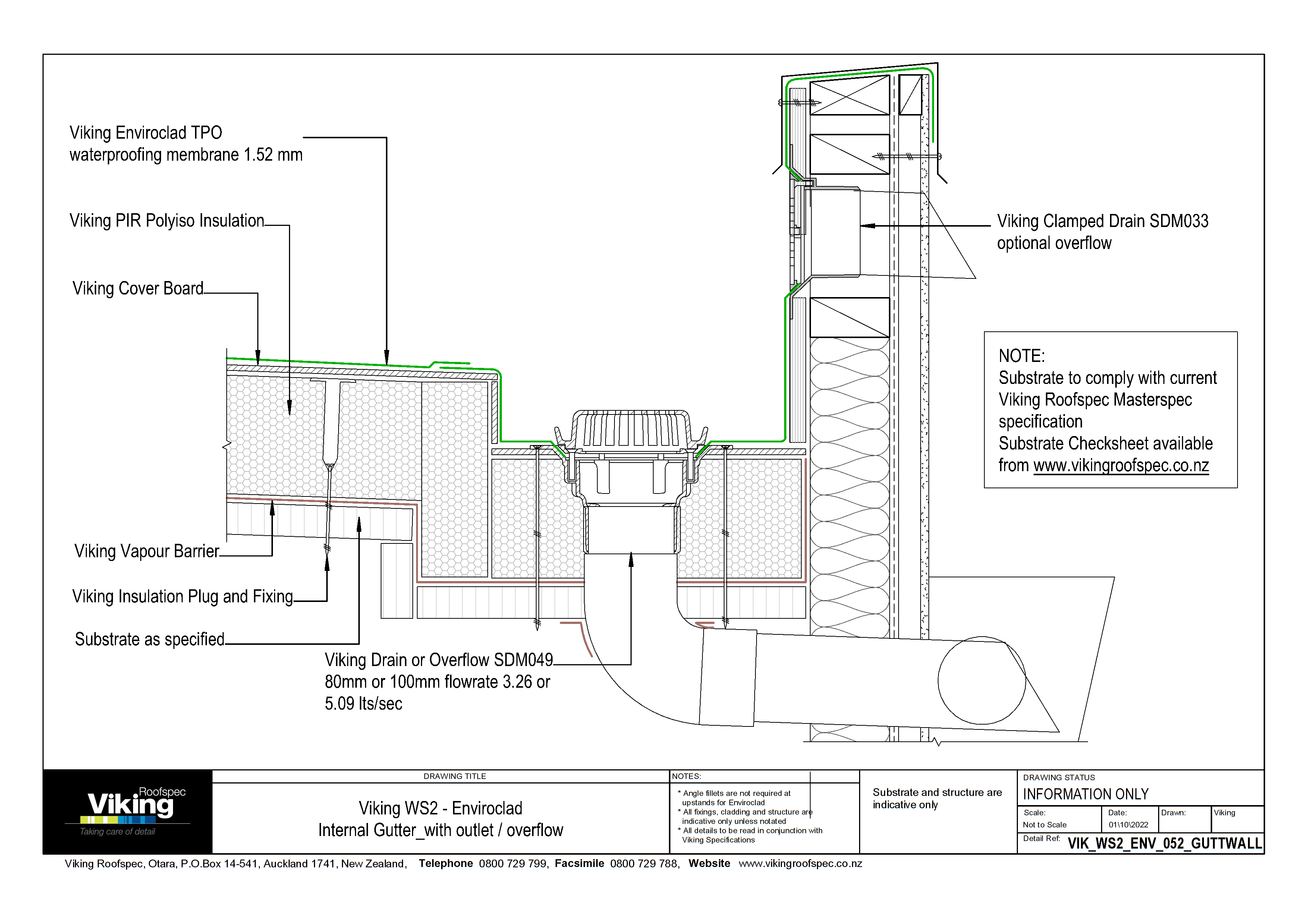
Internal Gutter with Outlet / Overflow 052
Intersection - External Corner 060
Intersection - Internal Corner 061
Intersection - Substrate Expansion 062
Intersection - Substrate Expansion to Concrete 062a
Intersection - Seismic Gap Generic 063
Intersection - Ridge / Hip 064
Intersection - Valley 065
Intersection - Sheet Lap 066
Intersection - Sheet T-Joint 067
Intersection - Lap Transition 068
Junction - Upstand to Pitched Roofing 070
Junction - Metal Roof to Internal Gutter 072
Junction - Mansard Verge 073
Junction - Dormer ISO 074
Junction - Dormer Gutter 074a
Apron Upstand behind Cladding 080
Apron Upstand to RAB behind Cladding 080a
Apron Upstand Terminations without Cladding 081
Accessories Enviro TPO Weldable Rib 120
WarmSpan2 w Torch-On Details - Full Set
Best Practice Design in Membrane Roofing
Plinth Direction to Divert Watershed 004
Cricket Diverter for Watershed 004a
Horizontal Ducting Pipe 006a
Vertical Ducting Pipe 006
Horizontal Ducting Pipe 006a
Flue or Oversize Pipe 007
Skylight or Roof Access Hatch 008
Square Post through Decking 009
Post or Rail for Plant Room Equipment 011
Plinth Base for Balustrade 012
Plinth for Concrete or Timber 013
Acoustic Mounting Block 014
Verge Barge with Low-Profile AFS 031
Verge Barge with Low-Profile AFS in Isometric 031a
Drip Edge to External Spouting 032
Verge Edge with Wall Continuing - Diverter for Cladding 033
Verge Edge with Wall Returning - Diverter for Cladding 033a
Parapet with Cap Concrete Wall 040
Parapet Timber Wall ISO 040a
Parapet with Scupper Outlet 041
Parapet with Overflow 042
Internal Gutter with Outlet 050
Internal Gutter to Wall 051
Internal Gutter with Outlet / Overflow 052
Intersection - External Corner 060
Intersection - Internal Corner 061
Intersection - Substrate Expansion 062
Intersection - Substrate Expansion to Concrete 062a
Intersection - Seismic Gap Generic 063
Intersection - Ridge / Hip 064
Intersection - Valley 065
Intersection - Sheet Lap 066
Intersection - Sheet T-Joint 067
Junction - Upstand to Pitched Roofing 070
Junction - Metal Roof to Internal Gutter 072
Junction - Mansard Verge 073
Junction - Dormer ISO 074
Junction - Dormer Gutter 074a
Apron Upstand behind Cladding 080
Apron Upstand to RAB behind Cladding 080a
Apron Upstand Terminations without Cladding 081
WarmSpan² Engineering Report
WarmSpan² - Product Technical Statement
WarmSpan² - Product Data Sheet
WarmSpan² Substrate Checklist - Steel Tray
WarmSpan² Substrate Checklist - Plywood
Vapour Barrier - Product Data Sheet
Soudafoam Adhesive Product Data Sheet
Cover Board - Product Data Sheet
Quality Control Checklist - Low Risk Design & Details
Quality Control Checklist - Pre-Installation
Quality Control Checklist - Post Installation
WarmSpan/WarmRoof Accessory Guide