Peel and Stick
To visit the Peel and Stick product page, click here
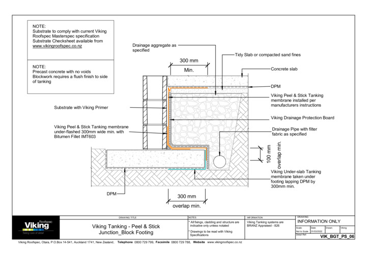
Peel and Stick Details - Full Set
Multi-level Connection 04
Wall to Insulated Slab 05
Polyblock Max Depth 1.5m 07
Brick ties through Membrane 23
Footpath to Tanked Wall 36
Peel and Stick BRANZ Appraisal
Tanking Checklist - Builder
Tanking Checklist - Installer
Below-ground Tanking Methodology
Peel and Stick Sample Warranty
Solvent Based Adhesive - SES301 MSDS
EasyPaste - SES302/303 MSDS