EcoStar
To visit the EcoStar product page, click here
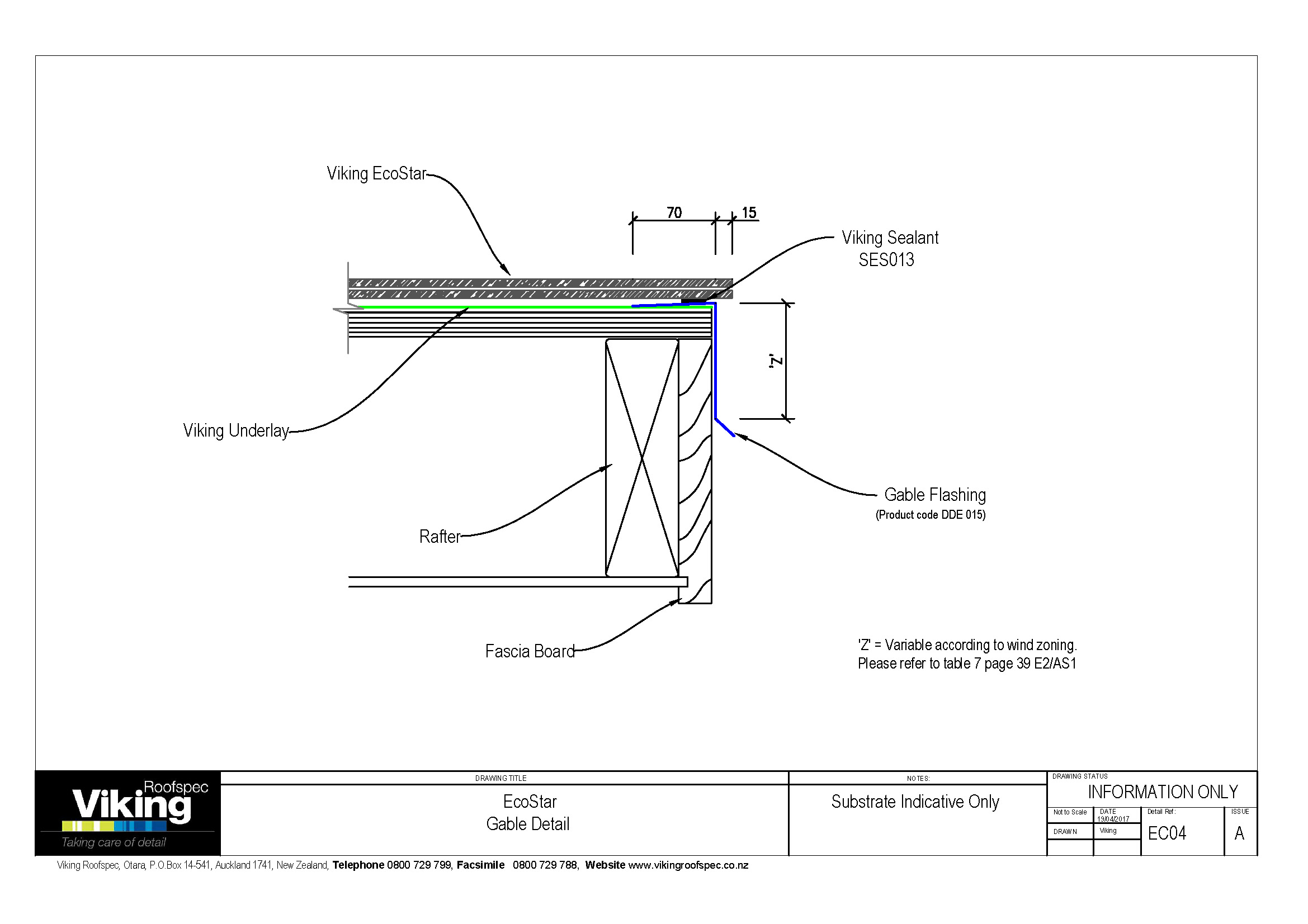
EcoStar Details - Full Set
EcoStar to Low-slope Roof EC 10
EcoStar to Mansard Roof EC11
EcoStar Product Information
EcoStar Substrate Checklist - Plywood
EcoStar Substrate Checklist - Strandsarking
EcoStar Uplift Resistance Report
EcoStar Durability Testing
Weatherbond Multi-Purpose Primer MSDS