Enviroclad
To visit the Enviroclad product page, click here
Enviroclad Details - Full Set
Best Practice Design in Membrane Roofing
Outlet to Overflow Side Exit 001a
Sump Outlet w Overflow 003
Plinth Direction to Divert Watershed 004
Cricket Diverter for Watershed 004a
Vertical Ducting Pipe 006
Horizontal Ducting Pipe 006a
Flue or Oversize Pipe 007
Skylight or Roof Access Hatch 008
Square Post through Decking 009
TPO Pourable Pocket and Sealant 010
Post or Rail for Plant Room Equipment 011
Plinth Base for Balustrade 012
Plinth for Concrete or Timber 013
Acoustic Mounting Block 014
EJOT Plinth for Enviroclad 015
Ventilation Cavity Vent 020
Ventilation Aluminum Cavity Vent 020a
Ventilation Substrate Roof Vent for Concrete 020b
Ventilation Substrate Aluminum Roof Vent for Concrete 020c
Ventilation Cavity Vent at Dripedge 021
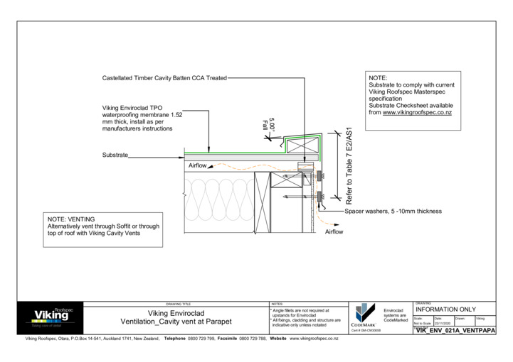
Ventilation Cavity Vent at Parapet 021a
Ventilation Cavity Vent through Soffit 021b
Verge Barge with Low-Profile AFS 031
Verge Barge with Low-Profile AFS in Isometric 031a
Drip Edge to External Spouting 032
Verge Edge with Wall Continuing - Diverter for Cladding 033
Verge Edge with Wall Returning - Diverter for Cladding 033a
Parapet with Scupper Outlet 041
Parapet with Overflow 042
Internal Gutter with Outlet 050
Internal Gutter to Wall 051
Internal Gutter with Outlet / Overflow 052
Intersection - External Corner 060
Intersection - Internal Corner 061
Intersection - Substrate Expansion 062
Intersection - Substrate Expansion Ply to Concrete 062a
Intersection - Seismic Gap Generic 063
Intersection - Ridge / Hip 064
Intersection - Valley 065
Intersection - Sheet Lap 066
Intersection - Sheet T-Joint 067
Intersection Lap Transition 068
Junction - Upstand to Pitched Roofing 070
Junction - Membrane to Pitched Roofing Longrun 071
Junction - Membrane to Pitched Roofing Tiles 071a
Junction - Membrane to Pitched Roofing Shingles 071b
Junction - Metal Roof to Internal Gutter 072
Junction - Mansard Verge 073
Junction - Dormer ISO 074
Junction - Dormer ISO 074
Apron Upstand behind Cladding 080
Apron Upstand to RAB behind Cladding 080a
Apron Upstand Terminations without Cladding 081
Deck Balustrade to External Spouting 101
Accessories Enviroclad TPO Weldable Rib 120
Scupper Overflow 200x80mm Detail
Scupper Overflow 200x80mm Model
Sump 100/150mm (IMR120T) Detail
Sump 100mm (IMR120T) Model
Sump 100/150mm (IMR400T) Detail
Sump 100mm (IMR400T) Model
Sump 150/200mm (IMR130T) Detail
Sump 150mm (IMR130T) Model
Sump 200mm (IMR130T) Model
Sump 150mm (IMR400T) Model
All Through Balcony Drain 80mm Detail
All Through Balcony Drain 80mm Model
All Through Balcony Drain 100mm Detail
All Through Balcony Drain 100mm Model
Deck Drain Side Exit 80mm Model
Deck Drain Side Exit 80mm Detail
Roof Drain Side Exit 80mm Detail
Roof Overflow 100mm Detail
Roof Overflow 100mm Model
Roof Overflow 80mm Detail
Roof Overflow 150mm Detail
Roof Overflow 150mm Model
Roof Overflow Side Exit 80mm Detail
Roof Overflow Side Exit 80mm Model
Enviroclad CodeMark Certificate
Enviroclad BRANZ Appraisal
Enviroclad Potable Water Certificate
Enviroclad Product Technical Statement
Enviroclad Product Data Sheet
Enviroclad Fleeceback PDS
Rhinobond Product Data Sheet
Enviroclad Substrate Checklist - Plywood
Enviroclad Substrate Checklist - Concrete
Enviroclad Substrate Checklist - 18mm Compressed Fibre Cement
Enviroclad Substrate Checklist - Strandsarking
Enviroclad Substrate Checklist - SIPs
Surface Sealer Product Data Sheet
CavGrip III Product Data Sheet
EJOT Bar Product Data Sheet
Walkway Roll Product Data Sheet
Quality Control Checklist - Low Risk Design & Details
Quality Control Checklist - Pre-Installation
Quality Control Checklist - Post Installation
Enviroclad Care and Maintenance Guide
SureWeld TPO Chemical Resistance Chart
Enviroclad Sample Warranty
One-Part Pourable Sealer (White) MSDS
Water Cut-Off Mastic MSDS
Surface Sealer Part A MSDS
Surface Sealer Part B MSDS
Clear Cut Edge Sealant MSDS
Enviroclad Accessory Guide